云南一367的四合院,5个工人,5天就建好!
傻大方提示您本文标题是:《云南一367的四合院,5个工人,5天就建好!》。来源是。
云南一367的四合院,5个工人,5天就建好!。植物纤维|建材---
植物纤维|建材---傻大方小编总结的关键词

位于西南边陲的云南省,是我国少数民族种类最多的省份,广阔的地域和丰富的民族文化,形成多元化的建筑特色。
青瓦人字大屋顶、二层、重檐、“三房一照壁”、“四合五天井”——白族的传统四合院,追求住宅宽敞舒适,以家庭为单位独成院落,美观实用。
四川星河建材公司采用新型植物纤维建材,不用钢筋水泥,在云南修建了一座别致的滇式四合院。面积367平方米,5个工人,一台吊车,5天就完成主体建设!
一起来看看这座四合院的修建过程!
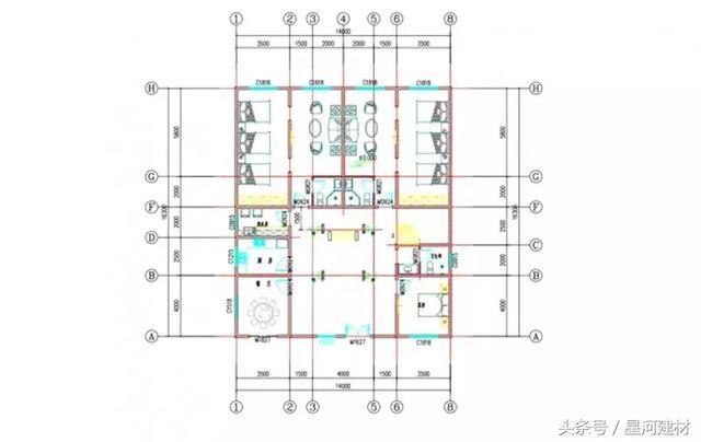
▼四合院设计图
植物纤维|建材---傻大方小编总结的关键词

▼主体快速吊装
植物纤维|建材---傻大方小编总结的关键词

▼屋顶吊装完成,特色青瓦直接安装
植物纤维|建材---傻大方小编总结的关键词

▼植物纤维建材预制生产的柱子
植物纤维|建材---傻大方小编总结的关键词

植物纤维|建材---傻大方小编总结的关键词

▼四合院近景,圆弧设计均提前定制
植物纤维|建材---傻大方小编总结的关键词

植物纤维|建材---傻大方小编总结的关键词

▼四合院主体、外饰快速完工
植物纤维|建材---傻大方小编总结的关键词

植物纤维|建材---傻大方小编总结的关键词

抗8.5级强地震,防火、防水、防冻、防裂纹、防虫蛀、防老化;四川星河建材采用植物纤维建材修建的绿色装配式建筑,在吊装和运输条件良好的情况下,1天可完成200—300平方米的主体建设,房型还可以定制,工期短、工人少,更省成本,非常适合自建房,钢筋、水泥、红砖、石材都不用,快速建房、使用寿命长!
- 云南将在全省129个县建设公安便民“自助超市”
- 盘点6个未解之谜,云南怪异水塘,你知道不知道?
- 超享公司赠户外广告助力云南广南宣传
- 为希望和梦想而战!18所希望小学决胜篮球季省级联赛云南赛区
- 云南省从地级市降为县级市的城市
- 【云南部分农产品销售难追踪】补短板 奔蓝海
- 云南:志愿者将为南博会提供高水平服务
- 云南河口查获7384张貂皮 涉案价值上千万
- 【劳动者风采】云南省第二监狱警察杨昆云——点点滴滴温暖人心
- 新中式四合院别墅古朴优雅大气实用,极佳的自建房方案选择