仿古四合院民宿,让乡亲们走向幸福小康!
傻大方小编提示您本文标题是:仿古四合院民宿,让乡亲们走向幸福小康!。来源是。
仿古四合院民宿,让乡亲们走向幸福小康!。民宿|小康|四合院|走向幸福|鸟瞰图|仿古---
民宿|小康|四合院|走向幸福|鸟瞰图|仿古---

项目名称:四川成都晏先生自宅
项目地点:四川成都
建筑面积:550㎡
基地面积:600㎡
建筑尺寸:22.5mX25.4m
占地面积:350㎡
户型概况:9室2厅10卫1厨2书房1茶室1棋牌室1家庭室
建筑结构:框架结构
主创建筑师:范亚朋
工程造价:74万
项目概况
仿古四合院民宿,让乡亲们走向幸福小康!。民宿|小康|四合院|走向幸福|鸟瞰图|仿古---
民宿|小康|四合院|走向幸福|鸟瞰图|仿古---

△设计前期业主手绘图
该项目的委托人一直从事工程类的工作,对于设计方面了解的比较多。在前期沟通的过程中,业主向我们提供了他自己关于四合院房屋布置的手绘图。
民宿|小康|四合院|走向幸福|鸟瞰图|仿古---

△设计前期业主手绘图
委托人的手绘图将四合院房屋的大部分功能都标注了出来,因为建筑建成后是作为民宿使用的,所以项目设计师在尊重委托人意愿的基础上进行了设计。设计的重点放在了房屋的立面造型以及庭院景观的设计方面。
民宿|小康|四合院|走向幸福|鸟瞰图|仿古---

△总平面示意图
建筑四周的情况比较简单,建筑的南面是道路。只在北面有一个山崁,东西面都没有邻居,由于建筑四周没有遮挡,各楼层房间的采光都比较好。
图纸设计
仿古四合院民宿,让乡亲们走向幸福小康!。民宿|小康|四合院|走向幸福|鸟瞰图|仿古---
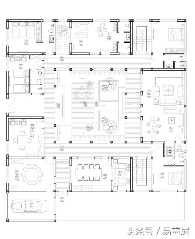
图纸设计过程中,根据业主前期对于房屋功能的规划,我们将入户西侧业主期望的卧室细分为了棋牌娱乐室和圆桌餐厅。不仅扩大了餐厅的面积保证人多时入住者的用餐,也为入住者提供了休闲娱乐的空间。使得整个房屋的功能更为多样和全面。
民宿|小康|四合院|走向幸福|鸟瞰图|仿古---

△一层平面图
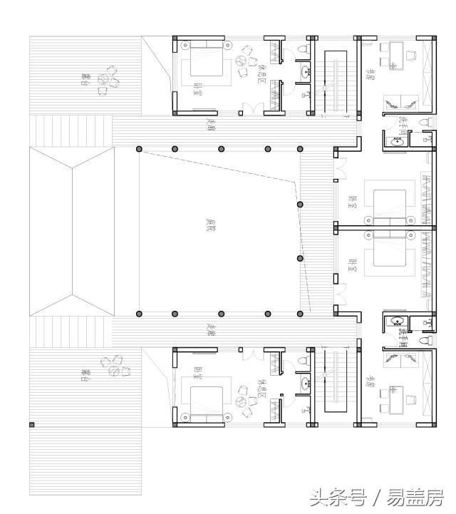
二层的两个大露台给入住民宿的游客提供了一个欣赏风景,安静小酌的场所。因建筑物四周没有遮挡物,在露台休息时,看到的风景很全。同时,二层还规划了两个带书房的卧室,对于商业入住的旅游人员,这种房屋的功能更为实用。
民宿|小康|四合院|走向幸福|鸟瞰图|仿古---

△二层平面图
造型设计
仿古四合院民宿,让乡亲们走向幸福小康!。民宿|小康|四合院|走向幸福|鸟瞰图|仿古---
整个造型设计采用了一些中式元素,想要打造的是仿古四合院的建筑。材料方面,青砖和木材的使用也让设计更为古色古香。
民宿|小康|四合院|走向幸福|鸟瞰图|仿古---

△鸟瞰图
二层的两个大露台直接连接二层的回廊,十分方便入住者使用。同时,露台的地点也是整个建筑观景的最佳位置。
民宿|小康|四合院|走向幸福|鸟瞰图|仿古---

△鸟瞰图
建筑的东面预留了一部分空间,这部分空间主要是用作绿化,使得东面一层居住的人员能有更好的入住体验。
民宿|小康|四合院|走向幸福|鸟瞰图|仿古---

△鸟瞰图
民宿|小康|四合院|走向幸福|鸟瞰图|仿古---

△鸟瞰图
民宿|小康|四合院|走向幸福|鸟瞰图|仿古---

建筑二层的回廊位置可以看到整个庭院的景致,住在二层的住户走出房间就可以欣赏美景。
△鸟瞰图
民宿|小康|四合院|走向幸福|鸟瞰图|仿古---

△鸟瞰图
建筑的立面造型中,设计师将屋脊进行了特殊设计,使得房屋更有立体感,也更接近中国传统建筑。
民宿|小康|四合院|走向幸福|鸟瞰图|仿古---

△东南角效果图
建筑的入户门采用的是如意门的样式。这种屋宇式宅门在古代时一般也是用于四合院的设计中。
民宿|小康|四合院|走向幸福|鸟瞰图|仿古---

△鸟瞰图
民宿|小康|四合院|走向幸福|鸟瞰图|仿古---

△鸟瞰图
二层房屋窗户的数量比较多,完全能够满足入住者采光方面的要求。
民宿|小康|四合院|走向幸福|鸟瞰图|仿古---

△鸟瞰图
民宿|小康|四合院|走向幸福|鸟瞰图|仿古---

△庭院效果图
庭院位置,中间树木的栽种中和了建筑厚重的视觉观感,让建筑在色彩上更多样。
民宿|小康|四合院|走向幸福|鸟瞰图|仿古---

△庭院效果图
入户的位置,影壁的选择,隔绝路人的视线。对于生活在宅院中的人是一种保护。同时,影壁上的浮雕也可以使得大门处更为好看。
民宿|小康|四合院|走向幸福|鸟瞰图|仿古---

△二层回廊效果图
二层回廊在每个房间的连接处都设置了门来实现分割,这样每个房间的使用者都有了私人的观赏地点。
民宿|小康|四合院|走向幸福|鸟瞰图|仿古---

△二层回廊效果图
同时,从二层回廊的位置不仅能把庭院的风景收入眼中,也能对房屋的整体建筑有一个更好的观看角度。
民宿|小康|四合院|走向幸福|鸟瞰图|仿古---

△东立面
民宿|小康|四合院|走向幸福|鸟瞰图|仿古---

△西立面
民宿|小康|四合院|走向幸福|鸟瞰图|仿古---

△南立面
民宿|小康|四合院|走向幸福|鸟瞰图|仿古---

△北立面
问答建筑师
仿古四合院民宿,让乡亲们走向幸福小康!。民宿|小康|四合院|走向幸福|鸟瞰图|仿古---
1、您作为设计师,在这个项目中有遇到什么困难么?
答:整个项目的基地周围环境比较简单,同时,该项目的业主因为从事工程类工作,对于自家的房屋规划也有一定的认识。因此,整个项目进行的都比较顺利,没有遇到太大的困难。
2、这个项目的设计周期是多久呢?
答:7天左右。
3、这个项目中哪些设计思路是业主开始不愿意采纳的,最终却接受的?
答:该项目的业主从事的一直是工程类的工作,对于建筑设计方面了解和认识的比较多,因此对于我们的设计都是认可的。设计过程中对于一些房屋功能的改动,在和业主良好沟通后,业主也都接受和认可。
4、和业主沟通中,您觉得业主对哪个地方最满意呢?
答:在设计前期,业主对于整个四合院的房间功能都有了一定的规划。但是秉着负责的态度,我们设计师在设计过程中根据房屋以后的使用途径,对于一些房间有所改动。设计师在和业主进行沟通后,业主对于设计师的改动也是十分认可,这个房间功能的改动也是业主最满意的地方。
下期预告
仿古四合院民宿,让乡亲们走向幸福小康!。民宿|小康|四合院|走向幸福|鸟瞰图|仿古---
浙江现代别墅
民宿|小康|四合院|走向幸福|鸟瞰图|仿古---

现代风格 / 三层/ 南方别墅 /353.4㎡
想要提问下期设计师的问题
请在评论区留言
如果你也喜欢定制设计,可点击文章下方的易盖房海报,寻找你自己的专属设计师。
- 3名中国游客日本住民宿乱扔垃圾被索赔 椅子放马桶盖上
- 上海将发布首份发展乡村民宿指导意见
- 规范民宿应多一些“网约”思维
- 上海近期将出台促进乡村民宿、邮轮经济、入境旅游发展相关文件
- 湖南君山全域旅游迎来首个民宿客栈
- 【图文】民宿里的慢时光,让生活幻化成诗!
- 永嘉乡贤给家乡投资10多亿!要建医院、学校、民宿、农家乐…
- 灰色地带、野蛮生长、冲突不断…"民宿"怎么了?!
- 【云游新疆】人文自然相融 零距离体验新疆现代民宿
- 刚住进民宿, 老婆就被抓! 老公把二宝扔到派出所, 带大宝继续玩..