这房子才花27万,我家门槛快被邻居踏平了!
我家门槛快被邻居踏平了!》,傻大方资讯编辑整理。我们不生产头条,我们只是社会头条新闻的搬运工!
正文开始:
没有哪一个人不想有一栋自己的房子,有一个自己的家,即使它再小,那也是自己的地方。然而很多人限于无地或是金钱,而使得这一个小小的愿望也变得遥遥无期,今日小编和大家分享一栋小户型平面设计,不用花那么多的钱,也能住的温馨舒适,聚苯模块(海容模块)帮您实现这一美好愿望。
效果图
基本信息
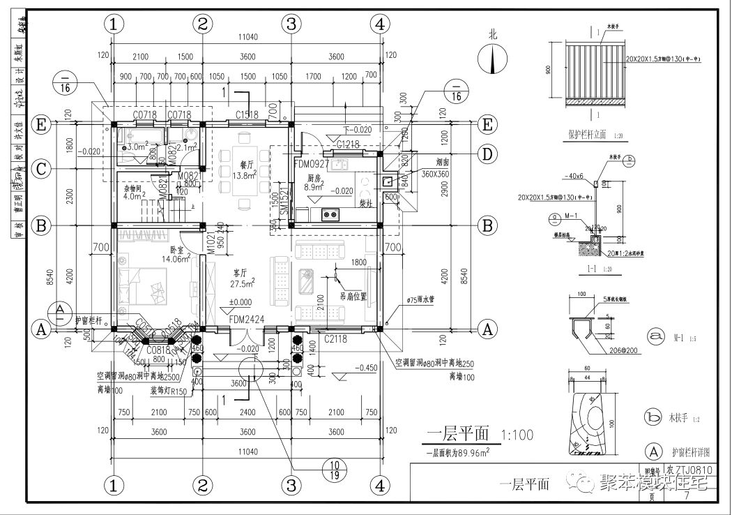
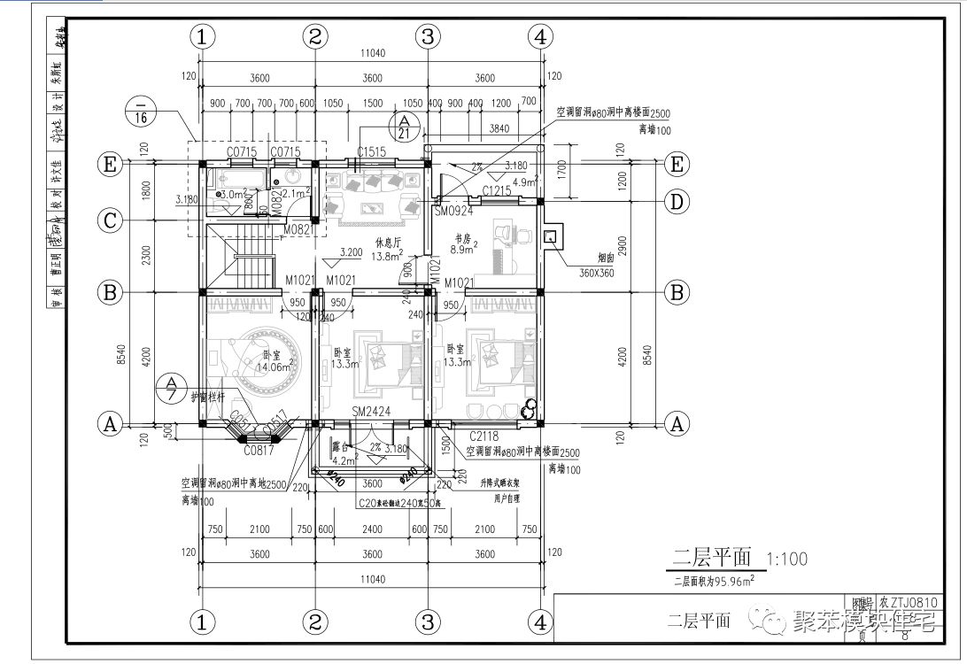
房屋进深:11.04m*8.54
建筑面积:188㎡
毛坯房成型预计费用:27万(包括模块、钢筋、混凝土、砂浆、网格布以及人工)
其中海容模块预计费用:7万
一层:客厅、卧室、厨房、餐厅、卫生间、杂物间
二层:休息厅、卧室、书房、卫生间
聚苯模块(海容模块)建房的理由
(1)自身强度大,导热系数小仅为0.028w/m·k,节能效果明显;
(2)本身B1级防火,结构性防火好;
(3)建房子封堵了冷热桥,建筑物使用寿命长久;
(4)抗震等级高,适用于抗震设防烈度8度及8度以下地区;
(5)施工简便、操作灵活,建造过程中完全取代墙体各种砌块、浇筑模板、外墙保温材料;
(6)建造周期短、综合性价比高,满足建筑节能与结构一体化技术要求;
(7)施工过程无建筑垃圾产生,实现现场文明施工;
(8)种类齐全、几何尺寸准确,材料损耗小。
- 姑姐离婚后一直住在我家,再婚时给我一张银行卡
- 婆婆,你要心里有数,房子钱你一分没掏,别在我家过分作威作福!
- 忍不住晒晒我家75㎡小房,裸婚八年才买的,大房间留给了儿子!
- 我家每年过年必吃的一道菜, 上桌就秒光, 怎么吃也不过瘾!
- 30岁街头乞丐,学画6年,专画重庆老房子,一幅画只卖50元!
- 老婆嫌我没出息,抛下我和儿子,一年后房子拆迁求我复婚,我拒绝
- 买什么样的房子绝对能升值?满足了这4点,1年内翻2倍!
- 老婆怀孕,小妹在我家住两天,离开时跟我说孩子不是我的
- 婆婆对我家庭管得太多,我和老公感情越来越淡
- 别因为你的房子旧就卖了,哪些都是炒房客的目标,特别是拆迁附近